Multilocale in vendita

Milano, Via Carlo Imbonati - Maciachini
€ 505.000
4 locali 4 locali
125 Mq 125 Mq
3 bagni 3 bagni

Multilocale in vendita

Milano, Via Carlo Imbonati - Maciachini

Descrizione annuncio

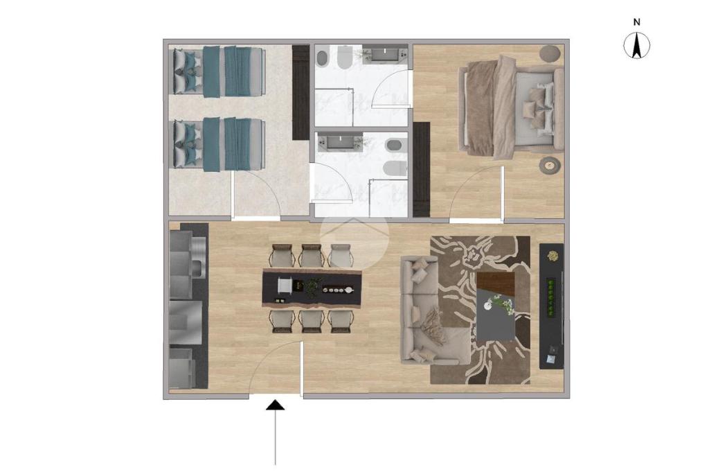
Via Imbonati - Proponiamo in vendita un affascinante appartamento, situato al piano rialzato di un edificio storico. Questa proprietà offre una generosa metratura, ideale per chi cerca spazi ampi e versatili.

L'immobile è così attualmente composto: ingresso su uno spazioso soggiorno doppio con cucina a vista dotato di ripostiglio aereo, bagno, camera matrimoniale ed un cortile coperto di proprietà.

La disposizione degli ambienti permette di personalizzare gli spazi secondo le proprie esigenze, mantenendo il fascino delle caratteristiche architettoniche originali.

L’immobile si presenta in buone condizioni: pavimentazione in cotto in continuità in tutti gli ambienti ad eccezione della camera da letto dove è stato posato il parquet nella parte superiore. Infissi in alluminio con doppio vetro, porta blindata. Riscaldamento autonomo.

Completa la soluzione una dependance sottostante l'immobile, rifinito con 2 camere matrimoniali dotati di bagno in camera e soggiorno con cucina a vista disponibile ad € 80.000.

L'appartamento si affaccia completamente all'interno dello stabile.

Lo stabile è in buone condizioni interne con servizio di portineria giornaliera.

Nelle immediate vicinanze troviamo la Metropolitana Linea Gialla M3 fermata Maciachini e le linee di superficie bus 70 e 84. A pochi passi troviamo tutti i principali servizi, quali scuole, farmacie, botteghe artigiane e supermercati. Passante ferroviario fermate di Lancetti e Bovisa. Zona residenziale e universitaria in forte rivalutazione grazie al progetto di pregio Scalo Farini in fase di realizzazione e caratterizzata dalla presenza di nuovi uffici del Maciachini Center e di una delle sedi distaccate del Politecnico di Milano.

Mostra tutto

Nelle vicinanze

Trasporto pubblico Trasporto pubblico
Maciachini
Maciachini
180 m
Dergano
Dergano
790 m
stazione di Milano Lancetti
stazione di Milano Lancetti
830 m
Milano Porta Garibaldi superficie
Milano Porta Garibaldi superficie
1,7 Km
Maciachini M3
Maciachini M3
150 m
Ricariche auto elettriche Ricariche auto elettriche
A2A Via Torquato Taramelli
1,3 Km
A2A PoliMi Bovisa
1,7 Km
A2A Palazzo della Regione
1,8 Km
Hotel Viu Milano
1,9 Km
BeCharge Milano Gae Aulenti
1,9 Km
Scuole Scuole
Scuola primaria Crespi
120 m
Istituto di istruzione superiore "Ercole Marelli - Marcello Dudovich"
550 m
Istituto Scientifico Sperimentale Luigi Cremona
570 m
Scuole
580 m
Istituto Tecnico Commerciale Gino Zappa
680 m
Farmacia Farmacia
Farmacia Rondò
180 m
Farmacia Nizza
560 m
Farmacia Maccioni
630 m
Farmacia
640 m
Farmacia Pesenti
720 m
Ospedali Ospedali
Humanitas San Pio X
640 m
Istituto Villa Marelli
820 m
Ospedale Niguarda Cà Granda
1,2 Km
Poliambulatorio Cesare Pozzo
1,3 Km
Ospedale dei Bambini "Vittore Buzzi"
2,0 Km
Supermercati Supermercati
Esselunga
260 m
Lidl
340 m
iN's
380 m
Carrefour Market
420 m
myAuchan
550 m
Negozi Negozi
Negozi
540 m
Steven's
560 m
Fiordifarina
660 m
Creando
700 m
dergano
730 m
Bar Bar
al baretto
190 m
J14
220 m
on the road
240 m
Mexicali
400 m
Al 69
510 m
Ristoranti Ristoranti
ti amo pizza
200 m
S.P.I.B.
220 m
du Lab
230 m
Ristorante 168
360 m
little lamb
370 m
Mostra tutto

Caratteristiche

Rif.:
61139053
Piano:
Terra di 4
Totale piani:
4
Camere da letto:
3
Arredamento:
Assente
Condizionamento:
Assente
Mostra tutto
Prezzo Prezzo
€ 505.000
Rata mutuo Rata mutuo
€ 2.381 / mese
Spese annue Spese annue
€ 2.280
Proponi il tuo prezzoProponi il tuo prezzo

Classe Energetica

G
G
G
G
G
G
G
G
G
EP globale non rinnovabile:
1.00 kW h/m² anno
EP invernale del fabbricato:
EP estiva del fabbricato:
Anno di costruzione:
1920
Riscaldamento:
Autonomo
Tipo impianto:
A radiatori
Tipo alimentazione:
Metano

Ti interessa visionare l'immobile?

Fissa un appuntamento  Fissa un appuntamento

Richiedi informazioni

Clicca su Leggi per aprire l'informativa
* Questi campi sono obbligatori

Calcola il tuo mutuo

Semplice e senza impegno
Anticipo

( % )
Mutuo

( % )

pochi semplici passi

inserisci i tuoi dati
Questionario completato
Grazie per aver richiesto un appuntamento senza impegno con un nostro Consulente del Credito e Assicurativo.

Hai inserito correttamente tutti i dati necessari e a breve riceverai una e-mail con un link da convalidare per inviare i tuoi dati.
Affiliato
Dnp Immobiliare Sas
Via Monte San Genesio, 20 20158 Milano (MI)

Il nostro staff


  • Nadege Clarisse Eboumbou Ebongue
    Coordinatrice

  • Umberto Filippo Maria Baroni
    Collaboratore

  • Gabriele Gioletta
    Collaboratore

  • Andrea Negretto
    Affiliato
Via Monte San Genesio, 20 20158 Milano (MI)
Zona: Milano Maciachini-Dergano
Mostra su mappa
Orari: 9:30/12:30 - 15:00/19:30
Affiliato
Dnp Immobiliare Sas
Via Monte San Genesio, 20 20158 Milano (MI)

2025 Tecnocasa Franchising S.p.A. - P. IVA 08365160152 - Via Monte Bianco 60/A 20089 Rozzano (MI). Ogni agenzia ha un proprio titolare ed è autonoma. Privacy policy | Policy utilizzo | Cookie policy